[PR] スポンサードリンク
インプレストタワー芝浦 エアレジデンス
提供: すてき空間
目次 >
(→間取り) |
|||
| 282行目: | 282行目: | ||
Image:75O-73.jpg| インプレストタワー芝浦エアレジデンス 公式間取り(3LDKー75Oタイプ)) | Image:75O-73.jpg| インプレストタワー芝浦エアレジデンス 公式間取り(3LDKー75Oタイプ)) | ||
</gallery> | </gallery> | ||
| − | [[ファイル: 代表1LDK平面図.jpg|thumb| | + | [[ファイル: 代表1LDK平面図.jpg|thumb|600px|left| インプレストタワー芝浦エアレジデンス 代表平面図(Ⅰ)]] |
| + | |||
| + | |||
| + | |||
| + | |||
| + | |||
| + | |||
| + | |||
| + | |||
| + | |||
| + | |||
*1LDKならいいかな?と思ったのですが、個室が4.5畳で狭いですね。せめて6畳くらいはほしいなと思っていたのですが。 | *1LDKならいいかな?と思ったのですが、個室が4.5畳で狭いですね。せめて6畳くらいはほしいなと思っていたのですが。 | ||
*いいなぁと思ったのが浴室に窓ありタイプ。換気ができる。でも、上層階だと風が強かったりするでしょうか。 | *いいなぁと思ったのが浴室に窓ありタイプ。換気ができる。でも、上層階だと風が強かったりするでしょうか。 | ||
2013年4月16日 (火) 18:32時点における版
目次
物件概要
- 物件名:インプレストタワー芝浦エアレジデンス(IMPREST TOWER SHIBAURA Air Residence)
- 所在地:東京都港区芝浦2丁目1番地3、48、97、98(地番)
- 住所:東京都港区芝浦2丁目6番16号
- 交通:
- 総戸数:114戸(他管理員室1戸)
- 構造、建物階数:地上25階建 地下1階建
- 敷地の権利形態:所有権の共有
- 標識設置年月日:2011年05月20日
- 着工日:2012年01月10日予定
- 完成時期:2014年03月予定(当初:2014年04月30日予定)
- 売主:双日株式会社 、双日新都市開発株式会社
- 設計・管理:浅井謙建築研究所株式会社
- 販売提携:東京建物不動産販売株式会社(媒介)
- 施工:株式会社淺沼組
- 管理会社:双日総合管理株式会社
価格・コスト・販売時状況
- 価格:2,900万円台予定~8,300万円台予定(当初予定…1LDK:33.54㎡-2,900万円台~/2F~、2LDK:52.17㎡-4,800万円台~/3F~、3LDK:69.21㎡-5,900万円台~/9F~)、最多価格帯:3,600万円台・7,000万円台(各5戸) 予定。
- マンションギャラリー(モデルルーム):LOOP-Xビル 14F全フロアー/東京都港区海岸3丁目9-15。
- 謳い文句:「住宅地としての港区アドレス」、「再開発エリア至近」、「免震構造タワーレジデンス」、角住戸率約82%(インプレスト芝浦Urban Lodge。― 求めたのは、どこにもないTOKYO ―駅前では大規模な再開発が進む、JR山手線の「田町」駅。いつの時代も魅惑のTOKYOを発信し続ける港区・芝浦エリア。未来に向けて、新しい輝きを放ちはじめる'シバウラ'で、いま、都心レジデンスの概念が変わろうとしている)。
- 計画構想:JR田町駅から東へ徒歩約8分に位置する分譲マンション。建物配置は周囲への圧迫感を軽減する為、道路境界・隣地境界からは充分な離隔を設け、東西の道路に面した部分には一般に公開した空地を設ける。外観デザインは水辺に近いということもあり、ガラスを基調とした透明感のあるものとし、タワー状にすることにより角住戸率を高め、質の高い居住環境を持たせた計画としている。地下1階・地上25階の鉄筋コンクリート造の共同住宅であり、平面形状はX方向20.65m、Y方向18.5mの正方形に近い形を成している。立面形状は1階から25階まで同一形状で立ち上り、地上階の骨組形式はX、Y方向ともにラーメン構造である。また、地震に対する安全性向上のため、地上1階と基礎の間に免震部材(高減衰積層ゴムアイソレーター、天然ゴム系積層ゴムアイソレーター、オイルダンパー)を設置した、60mを超える超高層基礎免震構造の建築物である。
- 高感度な都心エリアにこそ、やさしい温もりがひろがるレジデンスを。■お台場、東京タワー、六本木など都内有数のスポットに囲まれた、都心の隠れ家のような水辺の街・港区芝浦。高感度な都会人を魅了するこのエリアにふさわしく、デザインやプランニングには先鋭のクリエイターを起用。植物や木々の潤いを大胆に採り入れたボタニカルな演出、都会のスマートな表情、[ロッジ]のようなやさしい温もり・・・。今までの都心になかった、新感覚のタワーレジデンスがここからはじまる。
- 自然の恵みと素材の温もりに包まれたレジデンス。■緑や木々の恵みが建物の周囲だけでは、本当に自然を生かした住まいとは言えない。建物の中には土や古木を使った壁、スレート(石状タイル)の床といった表情豊かな素材を用いることで、「ロッジ」のような温もりと寛ぎに包まれる「自然」な住まいを追求。今までの都心レジデンスに足りなかった自然のもつやさしさや温もりが感じられる空間になる。
- 高度な安全性を追求した免震構造。■ずっと暮らし続けるためにはデザインの追求と同時に万一の地震に備えた安全性も大切なもの。揺れを低減する「高減衰ゴム系積層ゴム」、地震エネルギーを吸収し、地震による揺れを低減する「免震オイルダンパー」を採用した先進の免震構造、地下約24mの強固な支持にまで杭を打設するなど万一の地震に備えた、先進の免震構造と堅牢な基礎工法を採用。揺るぎない品質が、安心に包まれたタワーライフを支える。
- 3駅5路線利用可能。全ての駅が徒歩9分以内。■「品川」3分、「東京」9分、「六本木」8分など都内主要エリアへ軽快にアクセス。田町駅からバス利用で六本木へ乗り換えなしでアクセス可能。
- 身近で便利、生活利便施設が充実。■スーパーマーケットが徒歩10分以内に4店舗。コンビニエンスストアは約15m徒歩1分と利便施設が多数点在。
- 整った子育て・教育環境。■田町駅周辺を中心に保育園、幼稚園が13園。徒歩圏内に多くの公園が点在し子育てにも恵まれたロケーション。
- 管理費:各平米面積✕約310円。
- 管理準備金:当初管理費の1ヶ月分。
- 修繕積立金の考え方(係数上数円誤差発生):基準単位…各平米面積✕100円。
- 1年目~ 5年目…基準単価✕(係数:1.1)
- 6年目~10年目…基準単価✕(係数:1.7)
- 11年目~15年目…基準単価✕(係数:2.1)
- 16年目~20年目…基準単価✕(係数:2.5)
- 21年目~25年目…基準単価✕(係数:2.9)
- 26年目~30年目…基準単価✕(係数:3.3)
- 31年目~35年目…基準単価✕(係数:3.6)
- 36年目~40年目…基準単価✕(係数:3.6)
(その他一時金:15年目…基準単価✕2,000円、24年目…基準単価✕1,000円)。
- 修繕積立一時金:各平米面積✕8,000円。
- インターネット使用料:1,620円/月(税率別途考慮)。
- CATV保守費:486円/月(税率別途考慮)。
- 町会費:200円/月。
- 販売スケジュール・イベント
- 2013年01月12日~14日…優先事前案内会
- 2013年01月26日…第一期要望書受付開始
- 2013年01月26日/27日…事前案内会
- 2013年02月02日…モデルルームグランドオープン
- 2013年02月16日…構造説明会 -免震構造について-
- 2013年02月17日…管理説明会 -管理体制について-
- 2013年02月23日…個別インテリア相談会
- 2013年02月24日…敷地内見学会
- 2013年02月末日…「来場キャンペーン」倶楽湾(KURAWAN)ランチチケットプレゼント
- 2013年03月02日…ヒュースタジオイベント
- 2013年03月03日/09日/10日/17日…銀行個別相談会(三井住友信託銀行・みずほ銀行等)
- 2013年03月09日/23日…ナイトクルージング
- 2013年03月随時…ファイナンシャルプランナー個別相談会
- 2013年03月23日…第一期要望書受付終了
- 2013年03月24日/31日…銀行個別相談会
- 2013年03月末日…「来場キャンペーン」倶楽湾(KURAWAN)ランチチケットプレゼント
- 2013年04月06日~14日…第一期登録受付(1LDK:16戸)
- 2013年04月07日/14日…銀行個別相談会
- 2013年04月20日~21日…第一期契約
- 2013年06月上旬…第一章販売開始
- 2013年08月上旬…第二章販売開始
- 2014年02月下旬…竣工予定
- 2014年03月下旬…入居予定
[PR] スポンサードリンク
交通
- マンション目の前がバス停/竹芝橋停留所・徒歩1分:20m(ちぃばす :100円)。品川~港南~芝浦経路のフジエクスプレスがある。
- 都営バスのバス停/芝浦二丁目停留所・徒歩2分:180m(「浜95甲」系統 東京タワー行き、「浜95乙」系統 赤羽橋駅前行き、「田99」系統 田町駅東口(ターミナル)行き)
- 首都高速1号羽田線 芝浦出入口まで車4分・1000m。
- 旧海岸通り沿い。
- 駅から遠い。
- 駅までは実質10分ちょっと徒歩で行けます。
構造・建物
- 設計・施工管理と施工:設計・施工管理は浅井謙建築研究所株式会社が行い、工事着工から竣工までの施工計画を考え、売主の要求を満たしつつ品質の良い設備を提供し、施工は株式会社淺沼組が行い、現場にて施工管理者に従い実際に工事を行う分離発注
- 公開空地:高さ約8mのクスノキを20本植樹
- 歩車分離設計:歩道のエントラスアプローチと車道の駐車場アプローチを分離
- 地目:宅地
- 用途地域・地区:準工業地域・都市計画区域
- 建ぺい率・容積率:70%・557.35%
- 敷地面積:1,324.12㎡(400.55坪)
- 建築面積:487.70㎡(144.81坪)
- 延べ床面積:9,968.08㎡
- 建築確認番号:第ERI 12057915号・2012年12月28日付(第ERI 11051098号・2012年01月19日付)
- 高さ:88.24m
- 専有面積:33.54㎡~73.80㎡
- バルコニー面積:4.42㎡~20.56㎡
- 住宅性能評価:設計性能評価・建設性能評価取得
- 基礎長さ:約19mの杭を16本(拡底部最大4m直径をもつ場所打ち拡底杭)、地盤面から約26m
- 強度コンクリート:27N/m㎡~54N/m㎡
- 柱・梁鉄筋のコンクリート厚さ:40mm以上
- 床スラブ:カイザーボイドスラブ工法
- 壁・柱材:外壁材-ALCパネル、戸境壁-乾式壁、柱-RC
- 港区総合設計制度との関係:「港区住宅型総合設計許可要綱」許可
| 場所 | 天井高 |
|---|---|
| 内廊下 | 約2,200mm |
| リビング・ダイニング(3F~24F) | 約2,600mm |
| 洋室(3F~24F) | 約2,600mm |
| キッチン | 約2,200mm |
| 廊下(3F~25F) | 約2,100mm |
| 洗面室・トイレ(3F~25F) | 約2,100mm |
| 戸境パーテーション | 約1,800mm |
[PR] スポンサードリンク
共用施設
- エレベータ : 3基 (内1基は駐輪・ミニバイク用で2F迄)
- 駐車場 : 27台(設置率:約24%、月額使用料 : 29,000~ 37,000円 )
- 全高:5,300mm以下
- 全幅:1,950mm以下
- 重量:2,300kg以下
| タイプ | 全高 | 台数 | 月額使用料(円) |
|---|---|---|---|
| ハイルーフタイプ | 2,050mm | 7台 | 35,000円 |
| セダンタイプ | 1,550mm | 18台 | 29,000円 |
| ハイルーフタイプ (電気自動車対応) | 2,050mm | 2台 | 37,000円 |
- 駐輪場 : 163台 (設置率:約143%、月額使用料 : 100円~ 300円 )
| 置き方 | 台数 | 月額使用料(円) |
|---|---|---|
| 平置きタイプ | 9台 | 300円 |
| スライド式タイプ | 13台 | 200円 |
| ラック式タイプ (上部) | 49台 | 100円 |
| ラック式タイプ (下部) | 92台 | 200円 |
- バイク置場 : 3台 (月額使用料 : 3,000円 )
- ミニバイク置場 : 2台 (月額使用料 : 2,000円 )
- 建物内設置設備
- 自家発電機(6時間)
- 非常用飲料水生成システム(雨水貯留槽水生成)
- 防災設備(各階備蓄倉庫)
- 災害用マンホールトイレ
- かまど・収納ベンチ
- 震災時自動復旧エレベーター(震度5弱で一旦停止、1Fホールモニタ無)
- ペット足洗い場
- 24時間対応ゴミ置場(各階ゴミ置場無)
- 二重天井・二重床
- トリプルセキュリティシステム(エントランス・エレベーター・玄関扉)
- 耐震玄関ドア(通風機能無)
- 宅配ボックス
- 防犯カメラ
- 内廊下(エアコン空調、LED照明)
- 複層ガラス
- 電気自動車用電源
- AED(1F)
- ノンタッチキー(ディンプルキー、ワイヤレス機能無)
- ドアガード・ドアアイ(カバー付)
- 鎌式デットボルト錠
- 防犯サムターン
- ダブルロック式プッシュプルハンドル
設備・仕様
- キッチン
- 標準食器洗い乾燥機は3LDKのみ
- ディスポーザ(内部取外し洗浄タイプ)
- 整流板付レンジフード
- 包丁ポケット
- 巾木収納
- エネルックスリモコン(音楽プレーヤー接続可)
- ホーローパネル(コンロ周囲壁マグネット対応)
- 静音シンク(まな板・各種プレート無、シンク洗剤ポケットラック有)
- 浄水機能付シャワー水栓(ハンドシャワー付)
- 吊り戸棚耐震ラッチ対応(各壁家具転倒防止下地処理無)
- スパイス用引出し
- ガラストップコンロ(ガス式、水無し片面焼グリル有、幅596mm)
- ブルモーション機能付スライド収納(ソフトクローズ)
- 高効率TES熱源機・エコジョーズ
- リビング
- 標準エアコンは3LDKが天井カセットエアコンタイプで、2LDKは壁掛け式、1LDKは標準無し
- 居室の天井高は2F(1LDK)が約2,800mm、その他3F~24Fは約2,600mm、25Fは約2,700mm
- マルチメディアコンセント(高速インターネット環境・e-mansion )
- TES温水式床暖房(ガス式)
- 24時間換気システム(第三種換気非熱交換型)
- フラットフロア(玄関上がり框以外)
- 洗面室・トイレ
- 節水型トイレ(アラウーノS )
- 手洗いカウンター(収納付、鏡無)
- ヘルスメーター収納
- スライド収納(ソフトダンパー付、フロントポケット無、ドライヤーフック無、ゴミ箱無、ティッシュボックス入無)
- 三面鏡裏収納(曇止めヒーター機能無)
- 有機ガラス系カウンター(おそうじラクラクタイプ、シャワーホース引出し式)
- ヘアキャッチャー
- 緊急止水弁付洗濯機用水栓(洗濯機上部吊戸棚無)
- トイレ吊戸棚
- リネン庫(一部上部タイプ)
- 防水パン(約640mm✕約640mm)
- 床面材CF(クッションフロア)
- 浴室
- 弓形浴槽(有機ガラス系新素材スゴピカタイプ、底床型)
- 浴室手摺り
- 物干しバー(1本)
- コンパクトダウンライト(3個)
- ミストサウナ・浴室暖房乾燥機(TES)
- シャワースライド・バー
- フラッグストーンフロア
- ホップアップ排水栓
- 追いだき機能付フルオートバス(多機能型給湯リモコン設置)
- ささっとキレイ排水口(ヘアキャッチャー)
- 縦型ラインフレーム収納(壁付き照明無、以下代表例:Panasonic: i-X(イークス) )
- 収納・クリアシェルフ(取外し可)
- スチロール面材スタンダードドアN(パッキンレス)
- その他
- 人感センサー付玄関照明(保安灯無)
- 標準照明灯一式蛍光灯(ダウンライト含)
- カラーモニター付ハンズフリーインターホン(玄関前カメラ無)
- フローリング材:シートフローリング(ワックスフリー)
- バルコニー防水コンセント(スロップシンク無)
- 大型プレートスイッチ
- カーテンボックス
- ドアキャッチャー
[PR] スポンサードリンク
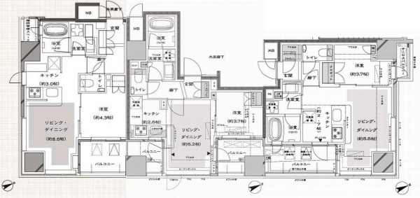
間取り
- 間取り:1LDK~3LDK。
- 間取り構成:1LDK-28戸、2LDK-32戸、3LDK-54戸(1LDK:2LDK:3LDK=約1:1.2:2)
- 間取りタイプ:計15タイプ(2階~8階:35E,40D,40F、3階~8階:55B,60A,60C、9階~15階:40H,55J,60I,70G,70K、16階~25階:70M,70N,75L,75O)
- 35Eの公式特徴:室内に広がり空間を創りだす約7mのワイドスパン、キッチンに窓とカウンターを設け快適性と機能性に配慮。
- 40Dの公式特徴:キッチンと浴室に開口部を設けた角住戸、LDと洋室の扉も開け放てば更に開放感ある空間に。
- 40Fの公式特徴:窓付のキッチンと浴室、更にオープンカウンターキッチンで開放感を演出、玄関にシューズインクロゼットを設置し、機能性も重視。
- 55Bの公式特徴:約6.8mのワイドバルコニーにLD、居室が面した開放感溢れるプラン、LDと洋室を開け放てば更に、広がるある空間に。
- 60Aの公式特徴:キッチンに窓を設け、通風・採光に優れた2面開口の角住戸プラン、パントリーや大型のリネン庫など収納も豊富に配置。
- 60Cの公式特徴:キッチンと浴室に開口部を設けた角住戸、約11.4帖のLDは家具配置もし易い奥行きのある形状。
- 40Hの公式特徴:玄関まわりをすっきり整理できるシューズインクロゼットを配置、洋室の間仕切りをオープンにするとLDとつながり一体空間。
- 55Jの公式特徴:キッチンや浴室に開口部を設けた南東角住戸、ウォークインクロゼットを2箇所に設け収納に配慮。
- 60Iの公式特徴:キッチンに窓を設け通風に配慮した2面バルコニープラン、ウォークインクロゼットたシューズインクロゼットを配し、収納も配慮。
- 70Gの公式特徴:キッチンに窓を設け、通風・採光が優れた2面開口の角住戸、9m超のワイドスパンで開放感を演出。
- 70Kの公式特徴:主開口部に11m超のフロンテージを設けたワイドスパンプラン。
- 70Mの公式特徴:玄関にシューズインクロゼットを両面に配し、収納に配慮、LDと洋室の扉を開け放てば更に、開放感ある空間に。
- 70Nの公式特徴:南東・南西方面に開口部を設けた角住戸、納戸やキッチンの窓も設け、機能性と快適性に配慮。
- 75Lの公式特徴:LDは3面に窓を設け開放感を演出、LDと洋室の扉を開け放てば更に、開放感ある空間に。
- 75Oの公式特徴:主開口面が13m超のワイドスパンプラン、納戸やシューズインクロゼット、洋室にも窓を設け機能性と快適性に配慮。
- 間取り面積:35E/33.54㎡、40D/39.05㎡、40F/38.56㎡、55B/52.17㎡、60A/58.57㎡、60C/58.70㎡、40H/37.28㎡、55J/55.52㎡、60I/57.73㎡、70G/67.46㎡、70K/69.21㎡、70M/69.43㎡、70N/69.20㎡、75L/71.97㎡、75O/73.80㎡
- 間取り配置:
| 階数 | 北西 | 北東 | 東 | 南 | 南西 | 西 |
|---|---|---|---|---|---|---|
| 25階 | 2501号室・75L 3LD | 2504号室・75O 3LDK・8,300万円台 | ← → | 2503号室・70N 3LDK | ← → | 2502号室・70M 3LDK |
| 24階 | 2401号室・75L 3LDK | 2404号室・75O 3LDK | ← → | 2403号室・70N 3LDK | ← → | 2402号室・70M 3LDK |
| 23階 | 2301号室・75L 3LDK | 2304号室・75O 3LDK | ← → | 2303号室・70N 3LDK | ← → | 2302号室・70M 3LDK |
| 22階 | 2201号室・75L 3LDK | 2204号室・75O 3LDK | ← → | 2203号室・70N 3LDK | ← → | 2202号室・70M 3LDK |
| 21階 | 2101号室・75L 3DLK | 2104号室・75O 3LDK | ← → | 2103号室・70N 3LDK | ← → | 2102号室・70M 3LDK |
| 20階 | 2001号室・75L 3LDK | 2004号室・75O 3LDK | ← → | 2003号室・70N 3LDK | ← → | 2002号室・70M 3LDK |
| 19階 | 1901号室・75L 3LDK | 1904号室・70O 3LDK | ← → | 1903号室・70N 3LDK | ← → | 1902号室・70M 3LDK |
| 18階 | 1801号室・75L 3LDK | 1804号室・70O 3LDK | ← → | 1803号室・70N 3LDK | ← → | 1802号室・70M 3LDK |
| 17階 | 1701号室・75L 3LDK | 1704号室・75O 3LDK | ← → | 1703号室・70N 3LDK | ← → | 1702号室・70M 3LDK |
| 16階 | 1601号室・75L 3LDK | 1604号室・75O 3LDK | ← → | 1603号室・70N 3LDK | ← → | 1602号室・70M 3LDK |
| 15階 | 1501号室・70G 3LDK | 1505号室・70K 3LDK | ← → | 1504号室・55J 2LDK | 1503号室・60I 2LDK | 1502号室・40H 1LDK |
| 14階 | 1401号室 70G | 1405号室 70K | ← → | 1404号室 55J | 1403号室 60I | 1402号室 40H |
| 13階 | 1301号室 70G | 1305号室 70K | ← → | 1304号室 55J | 1303号室 60I | 1302号室 40H |
| 12階 | 1201号室・70G 3LDK | 1205号室・70K 3LDK | ← → | 1204号室・55J 2LDK | 1203号室・60I 2LDK | 1202号室・40H 1LDK・3,790万円 |
| 11階 | 1101号室 70G | 1105号室 70K | ← → | 1104号室 55J | 1103号室 60I | 1102号室 40H |
| 10階 | 1001号室 70G | 1005号室 70K | ← → | 1004号室 55J | 1003号室 60I | 1002号室 40H |
| 9階 | 901号室・70G 3LDK | 905号室・70K 3LDK・5,900万円台 | ← → | 904号室・55J 2LDK | 903号室・60I 2LDK | 902号室・40H 1LDK |
| 8階 | 801号室 60A | 806号室 40F | 805号室 35E | 804号室 40D | 803号室 60C | 802号室 55B |
| 7階 | 701号室 60A | 706号室 40F | 705号室 35E | 704号室 40D | 703号室 60C | 702号室 55B |
| 6階 | 601号室 60A | 606号室 40F | 605号室 35E | 604号室 40D | 603号室 60C | 602号室 55B |
| 5階 | 501号室・60A 2LDK | 506号室・40F 1LDK | 505号室・35E 1LDK・3,190万円 | 504号室・40D 1LDK・3,680万円 | 503号室・60C 2LDK | 502号室・55B 2LDK |
| 4階 | 401号室・60A 2LDK | 406号室/40F 1LDK | 405号室/35E 1LDK | 404号室/40D 1LDK | 403号室/60C 2LDK | 402号室/55B 2LDK |
| 3階 | 301号室・60A 2LDK | 306号室・40F 1LDK | 305号室・35E 1LDK | 304号室・40D 1LDK | 303号室・60C 2LDK | 302号室・55B 2LDK・4,800万円台 |
| 2階 | - | 203号室・40F 1LDK・3,390万円 | 202号室・35E 1LDK・2,990万円 | 201号室・40D 1LDK | - | - |
- 1LDKならいいかな?と思ったのですが、個室が4.5畳で狭いですね。せめて6畳くらいはほしいなと思っていたのですが。
- いいなぁと思ったのが浴室に窓ありタイプ。換気ができる。でも、上層階だと風が強かったりするでしょうか。
[PR] スポンサードリンク
管理・サービス・規則体系
- 管理業務:通勤管理1名体制(週6日)
- 長期修繕計画:40年設定(大規模修繕3回想定)
- 壁面FIX外部窓硝子:年4回洗浄清掃
- 共有部・専有部緊急24時間対応:ナムスコール/緊急センターフリーコール(NAMS-24)・双日総合管理株式会社/駆けつけフリーコール
- ペット足洗場:無償貸与
- 新聞配達:特定業者住戸玄関ポスト前配達
- 警備:セントラル警備保障オンラインセキュリティ
買い物・食事・育児・教育
- 思いのほか買い物は便利そうなのでいいのですがね。
- 一番近くのスーパーは99イチバでしょうか。あそこの99イチバは7時~24時まで営業しているので便利ですが、一か所で買い物全部がすむスーパーではないでしょうね。となると、やはりピーコックへ行ってしまった方がいいのかな。あとは生協やネットスーパーなどを利用するのも手でしょうね。ここができてスーパーができればいいのですがね。
- アイランド店のピーコック(約360m・徒歩5分)はお買いものしやすいですよね。10時から23時まで営業しているし100円でDVDがレンタルできるDVD自動レンタル機もあります。99イチバの利用は本当に困った時位かな。安いけどお野菜などはいまいちなんですよね。あとはイトーヨーカドーのネットスーパーやイオンのネットスーパーもここは配送可能地域みたいです。それらを併用すればお買い物は十分ですね。
- 買い物
- セブンイレブン 芝浦ベイワード店(約15m・徒歩1分)
- ローソン 芝浦2丁目店(約105m・徒歩2分)
- miniピアゴ 芝浦2丁目店(約135m・徒歩2分)
- 大丸ピーコック(イオン) 芝浦アイランド店(約360m・徒歩5分)
- リカー&フーズ MINATOYA(約405m・徒歩6分)
- ドラックストア スマイル(約435m・徒歩6分)
- 肉のハナマサ 芝浦店(約585m・徒歩8分)
- ピーコックストア(イオン) グランパーク田町店(約705m・徒歩9分)
- マルエツプチ 芝4丁目店(約780m・徒歩10分)
- ヤマダ電機テックサイト 田町店(約825m・徒歩11分)
- 芝浦幼稚園(約400m・徒歩5分)。
- みなとほっとルーム「乳幼児一時預かり事業」(約330m・徒歩5分)
- アンジェリカ保育園(約360m・徒歩5分)
- 芝浦アイランドこども園(約480m・徒歩6分)
- たまち保育園(約705m・徒歩9分)
- 公立芝保育園(約780m・徒歩10分)
- 私立みなと幼稚園(約915m・徒歩12分)
- 区立芝浦幼稚園(約1,110m・徒歩14分)
- 区立芝浦小学区「通学区」(約1,005m・徒歩13分)
- 区立港南中学校「通学区」(約1,800m・徒歩23分)
- 芝浦工業大学 芝浦キャンパス(約345m・徒歩5分)
- 東京工業大学 田町キャンパス(約600m・徒歩8分)
- 慶應義塾大学 三田キャンパス(約1,275m・徒歩16分)
[PR] スポンサードリンク
周辺環境・治安
- 周辺環境は生活重視って感じではないですね、自分みたいな外食多しな単身のほうが検討はしやすいかもなと思いました。もしくは若年層夫婦とか。眺望とかアクティブな生活を充実させるには向いているかなと。ただ今後数人家族として暮らしていくかもしれないんでファミリー世帯がこの地域でどんな生活スタイルを持っているかを先に調べてから考えようと思います。
- 金融機関
- 三菱東京UFJ銀行 田町支店(約645m・徒歩9分)。
- みずほ銀行 芝支店(約825m・徒歩11分)。
- 医療機関
- みなと整形外科内科クリニック(約180m・徒歩3分)。
- 東京済生会中央病院(約1,785m・徒歩23分)。
- クリーニング
- ポニークリーニング 芝浦2丁目店(約95m・徒歩1分)
- 白洋舎 芝浦店(約260m・徒歩3分)
- 周囲建物状況:旧海岸通りより東側に当該マンションを見る。
- 左側建物:パレステュディオ芝浦City/10F建(築年月日2002年01月)
- 右側建物:パークタワー芝浦ベイワード アーバンウイング/(地上29階、高さ97.14m・賃貸(築年月日2005年07月)
- 右側奥建物:パークタワー芝浦ベイワード オーシャンウイング/地上29階、高さ104.84m・分譲(築年月日2005年05月)
- 奥建物:株式会社ディーエイチシー 中央物流センター/9F建(竣工)
周辺施設
- 一見無電柱化な地区の印象だが裏側等含めて電柱は十分に埋設されていない。
- ホテル
- ホテルJALシティ田町 東京(550m・徒歩6分)。
- ホテルインターコンチネンタル 東京ベイ(ゆりかもめ/芝浦ふ頭~竹芝経由・15分、約1,6001・徒歩19分)。
- 公共機関
- 三田警察署(約915m・徒歩12分)。
- 芝消防署 芝浦出張所(約800m・徒歩9分)。
- 公園
- 区立芝浦公園(約225m・徒歩3分)。
- 港区スポーツセンター(約330m・徒歩5分)。
- 芝浦アイランド 埠頭公園(約550m・徒歩7分)。
[PR] スポンサードリンク
その他
- 第一期契約者限定、来場合計4回で20万ポイント(約20万円分)がプレゼント(ROOMISM優待ポイント)され、オプション費に充当出来る。
- オプションシステムは大きく計4コースあり、株式会社淺沼組施工のROOMISM Extra-CustomとNi’s Up、双日新都市開発株主会社施工のNi’s Plusとインテリアオプション。
- Ni’s Plus(ニーズプラス)商品の代表例は、玄関ミラーとキッチンキャビネット、ランドリー吊り戸棚。
- 販売順序は1LDK→2LDK→3LDKと低層階から高層階を期毎分割販売の模様である。
- 登録受付期間が約1週間、締切当日に抽選形式である。
- 物件概要備考欄には『住宅ローン等(金融機関のお借入)が必要な方はご登録までに金融機関の借入承認が必要となります』と記載されている。
- 公式ホームページの作り等は、タワーコート北品川 と類似。
- 同時期販売の推定競合他社物件は、 東京ベイシティタワー、CAPITAL GATE PLACE、ライオンズタワー目黒川、リビオ目黒リバーサウス等がある(最競合は 東京ベイシティタワーである)。
| 売主・物件名 | 住所 | 入居年月日 | 総戸数 | 最寄り駅 |
|---|---|---|---|---|
| 住友不動産 東京ベイシティタワー | 東京都港区芝浦四丁目 | 2014年12月 | 171戸 | 山手線 「田町」駅・徒歩13分 |
| 野村不動産等 CAPITAL GATE PLACE | 東京都中央区月島一丁目 | 2015年9月 | 702戸 | 東京メトロ有楽町線 「月島」駅・徒歩1分 |
| 大京 ライオンズタワー目黒川 | 東京都品川区西五反田三丁目 | 2014年11月 | 75戸 | 山手線 「五反田」駅・徒歩7分 |
| 新日鉄興和不動産 リビオ目黒リバーサウス | 東京都品川区西五反田二丁目 | 2014年12月 | 78戸 | 山手線 「五反田」駅・徒歩6分 |
| 三井不動産レジデンシャル等 パークホームズ品川ザ レジデンス | 東京都港区港南二丁目 | 2014年11月 | 209戸 | 山手線 「品川」駅・徒歩11分 |
| サンケイビル ルフォン白金台ザ・タワーレジデンス | 東京都港区白金台二丁目 | 2014年2月 | 84戸 | 都営浅草線 「高輪台」駅・徒歩1分 |
- 港区芝浦一丁目に着工・竣工:2013年07月01日予定・2016年03月31日予定で、三井不動産レジデンシャル株式会社主幹の総戸数:約1000戸の (仮称)港区芝浦一丁目計画 がある。
- 芝浦二丁目町会でも分譲情報が「 町がきれいになります 」と紹介されている。
- 2012年度06月当初マンション名は「インプレスト芝浦エアレジデンス」だったが、2013年度01月には「インプレストタワー芝浦エアレジデンス」に変わっている(公式ホームページの設備・仕様内・省エネルギー対策『等級4』を取得項目内には「インプレスト芝浦エアレジデンス」と変更後も記載されている)。
- インプレストタワーと類似した東急電鉄株式会社分譲の『インプレスタワー』が存在する。
- フラット35登録マンション( フラット35S・金利Bプラン )
- 前建物は、東京都港区芝浦2丁目6-16 望月ビル(1F:日産プリンス東京販売株式会社 港営業所等)。アリアス株式会社が2005年同ビル取得後、スルガコーポレーションに2006年売却同年解体、駐車場を経て2011年双日が土地取得。
- 売主2社の関係は、双日株式会社に於けるマンション開発事業が2012年(平成24)年9月1日付双日リアルネット株式会社に統合されて同日双日新都市開発株式会社に社名変更された。
- 株式会社 淺沼組のマンション(20階以上)建築実績(JV除)
- タワー・ザ・ファースト静岡(住戸数:132戸):2010年03月/地上26階建
- シティタワー大泉学園(住戸数:124戸):2010年01月/地上26階地下1階建
- プラウドタワー亀戸(住戸数:129戸):2009年03月/地上20階地下1階建
- ザ・ステージオ(住戸数:550戸):2006年12月/地上20階地下1階建
- グローリオタワー巣鴨(住戸数:190戸):2006年10月/地上29階地下1階建
- パークハウス清澄白河ステーションサイド(住戸数:103戸):2005年02月/地上20階地下1階建
- シティタワー大阪(住戸数:357戸):2003年12月/地上50階地下1階
- ファミール宝塚グランスイートタワー(住戸数:177戸):2003年10月/地上32階地下1階
- ソフィアタワー勝どき(住戸数:142戸):2000年3月/地上23階地下2階
- 同時期双日新都市開発株式会社が首都圏で販売している物件は計5物件である。
- 芝浦2丁目マンション
- (丸仁)芝浦二丁目計画・B棟(築年月日:2014年11月、14階150戸)
- パークアクシス芝浦(築年月日:2012年10月、10建42戸)
- ロメック芝浦(築年月日:2007年12月、10階19戸)
- セルカディア港区芝浦(築年月日:2006年08月、9階61戸)
- ラフィーヌ芝浦(築年月日:2005年11月、10階13戸)
- パークタワー芝浦ベイワードオーシャンウイング(築年月日:2005年05月、29階179戸)
- パークタワー芝浦ベイワードアーバンウイング(築年月日:2005年05月、29階190戸)
- サンフル芝浦キャナルオーパス(築年月日:2003年11月、11階58戸)
- ヴェルト芝浦(築年月日:2002年11月、10階37戸)
- パレステュディオ芝浦シティ(築年月日:2002年09月、10階127戸)
- bayside(築年月日:2002年01月、8階22戸)
- OLIO芝浦(オリオ芝浦)(築年月日:2001年08月、11階58戸)
- ガラシティ田町(築年月日:1999年12月、11階50戸)
- パルデンス芝浦(築年月日:1999年02月、3階)
- ポートスクエア芝浦(築年月日:1996年8月、10階70戸)
- グランドメゾン田町(築年月日:1983年01月、14階189戸)
- モナークマンション田町(築年月日:1983年01月、7階32戸)
- 田町竹芝ハイツ(築年月日:1982年11月、8階29戸)
- 秀和第2田町レジデンス(築年月日:1982年06月、11階129戸)
- 秀和田町レジデンス(築年月日:1982年01月、11階144戸)
- シティ田町(築年月日:1982年04月、11階60戸)
- ネオハイツ田町(築年月日:1981年08月、7階17戸)
- キョウエイハイツ田町(築年月日1980年10月、11階66戸)
- ニューハイム田町(築年月日:1980年03月、7階30戸)
- 田町東豊エステート(築年月日:1979年04月、10階50戸)
- 田町グリーンハイツ(築年月日:1979年02月、8階39戸)
- 田町センチュリーマンション(築年月日:1976年01月、7階47戸)
- 芝浦の歴史(出典:ウィキペディア)
- 1912年(明治45年) 隅田川口改良工事が始まり、その時に浚渫された土砂を使って芝浦地区の埋立て開始
- 1919年(大正8年) 芝浦海面埋立地が完成
- 1920年 芝浦町一丁目〜三丁目が成立、東京市芝区に所属
- 1932年(昭和7年) 芝浦町一丁目に外国・国内の貨物船専用桟橋である芝浦桟橋(芝浦埠頭)が完成
- 1936年(昭和11年) 芝浦町とその周辺の町域整理、芝浦町二丁目に周辺地域を合わせた新たに芝浦一丁目〜三丁目が成立し、芝浦町三丁目に周辺地域を合わせた西芝浦一丁目〜四丁目が起立され、芝浦町一丁目が海岸通三丁目に変更
- 1947年(昭和22年) 芝区が赤坂区・麻布区と合併して新たに港区が成立、それに伴い芝浦地区は東京都港区芝浦・西芝浦となる
- 1964年(昭和39年) 芝浦地区に住居表示が実施され芝浦に西芝浦を統合し現行の芝浦一丁目〜四丁目が成立
- 竣工当初無い共用施設・サポートサービス一覧
- 屋上庭園・緑化(駐車場屋根含)
- 車寄せ可能キャノピー式エントランスアプローチ
- プール・フィットネス・スパ・噴水
- スカイラウンジ
- ゲスト/スタディ/カルチャー/パーティ/キッズルーム
- トランクルーム
- ミニショップ・ベンダーコーナー
- 太陽光発電(地中熱含)システム
- カーシェアリング
- レンタサイクル
- コンシェルジュサービス
- 24時間有人管理
- ネット宅配サービス(専用宅配ボックス設備無)
- 専用ポータルサイト運営
[PR] スポンサードリンク
良い所・悪い所
- 各種意見より(相反する条件、相反する魅力)。
- 良い所。
- 悪い所。
掲示板
リンク
- おひとりさまの新築マンション購入
- マンションの間取りや価格を言いたい放題! (2013年04月記事)
| 物件概要 | |
|---|---|
| 所在地 | 東京都港区芝浦2丁目1番地3、48、97、98(地番) |
| 交通 |
山手線 「田町」駅 徒歩8分 京浜東北線 「田町」駅 徒歩8分 都営三田線 「三田」駅 徒歩9分 都営浅草線 「三田」駅 徒歩9分 ゆりかもめ 「芝浦ふ頭」駅 徒歩9分 |
| 総戸数 | 114戸 |


