[PR] スポンサードリンク
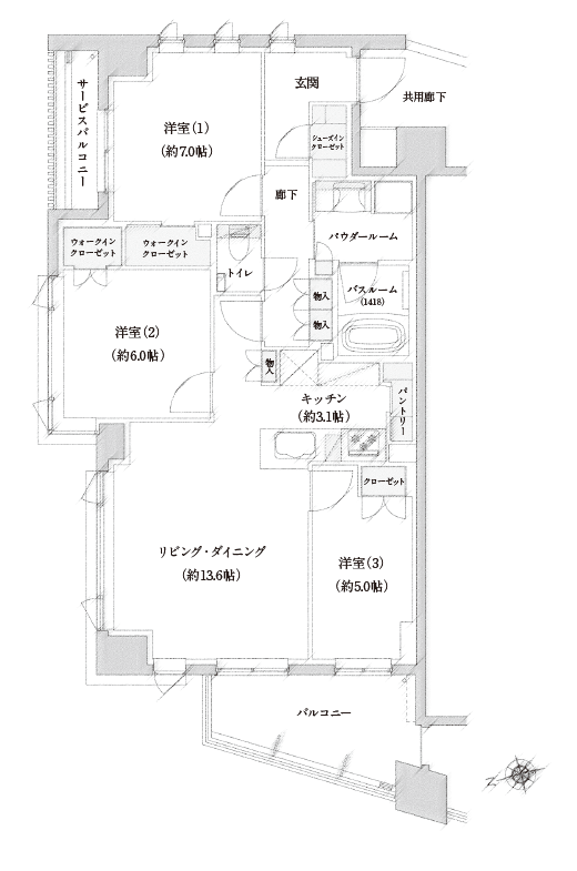
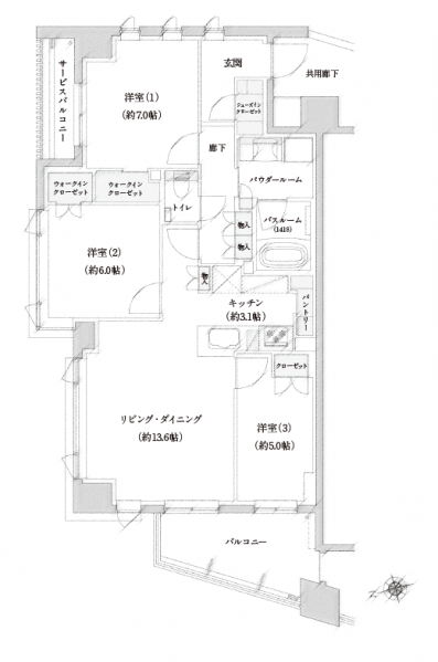
Aタイプ 上麻生161104.png
提供: すてき空間
目次 >
このプレビューのサイズ: 397 × 599 ピクセル。 その他の解像度: 159 × 240 ピクセル | 520 × 785 ピクセル。
元のファイル (520 × 785 ピクセル、ファイルサイズ: 58キロバイト、MIME タイプ: image/png)
ファイルの履歴
過去の版のファイルを表示するには、その版の日時をクリックしてください。
| 日付と時刻 | サムネイル | 寸法 | 利用者 | コメント | |
|---|---|---|---|---|---|
| 現在の版 | 2016年11月4日 (金) 03:11 | 520 × 785 (58キロバイト) | CRYCH (トーク | 投稿記録) |
- このファイルは上書きできません。
ファイルの使用状況
以下のページがこのファイルにリンクしています:
