[PR] スポンサードリンク
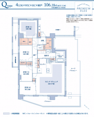
アネシア平針qtype.PNG

提供: すてき空間
目次 >
このプレビューのサイズ: 484 × 600 ピクセル。 その他の解像度: 194 × 240 ピクセル | 735 × 911 ピクセル。
元のファイル (735 × 911 ピクセル、ファイルサイズ: 256キロバイト、MIME タイプ: image/png)
ファイルの履歴
過去の版のファイルを表示するには、その版の日時をクリックしてください。
| 日付と時刻 | サムネイル | 寸法 | 利用者 | コメント | |
|---|---|---|---|---|---|
| 現在の版 | 2016年2月21日 (日) 18:02 | 735 × 911 (256キロバイト) | Renren0126 (トーク | 投稿記録) |
- このファイルは上書きできません。
ファイルの使用状況
以下のページがこのファイルにリンクしています:
| 毎月100組以上の相談を受けるマンションマニア! | |
|---|---|
|
2024年07月09日
子育てファミリーの需要が多い中で3LDKの供給が少なく枯渇してしまっている文京区で総戸数500戸オーバー、文京区最大級ということでだいぶ潤してくれる期待のプロジェクトです。 立地に関しては文京区内では坂下であり工業系地域ですから『文京区の高級住宅街』感はないですが春日・後楽園駅までは高低差少なく歩きやすいですね。 住民専用のシャトルバスも運行されます。(その代わり管理費は高いですが…) 文京区では奇跡的な規模感の板状マンションで充実した共用施設、かっこいい外観デザインなど欲しいと思わせてくれるのは立地だけではありません。 価格に関しても平均坪単価約600万円というのは定借らしいのですが…その単価帯に見合っていない室内スペック(設備というよりかは質感、天井高とサッシ高など)なのですよね… 『元々は坪単価400万円台で販売しようとしていたのかな?』とすら思ってしまうレベルでした。 でも、文京区で検討中であればそんなことを気にしている場合ではないですから枝葉の部分と割り切るしかないでしょう。 |
