[PR] スポンサードリンク
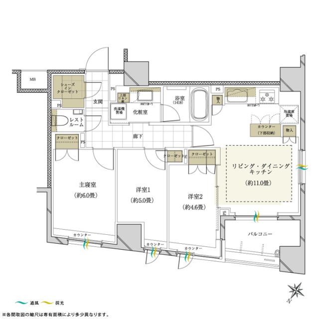
Dタイプ 日本橋161029.jpg
提供: すてき空間
目次 >
このプレビューのサイズ: 600 × 600 ピクセル。 その他の解像度: 240 × 240 ピクセル | 640 × 640 ピクセル。
元のファイル (640 × 640 ピクセル、ファイルサイズ: 64キロバイト、MIME タイプ: image/jpeg)
ファイルの履歴
過去の版のファイルを表示するには、その版の日時をクリックしてください。
| 日付と時刻 | サムネイル | 寸法 | 利用者 | コメント | |
|---|---|---|---|---|---|
| 現在の版 | 2016年10月29日 (土) 22:54 | 640 × 640 (64キロバイト) | CRYCH (トーク | 投稿記録) |
- このファイルは上書きできません。
ファイルの使用状況
以下のページがこのファイルにリンクしています:
