[PR] スポンサードリンク
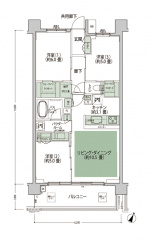
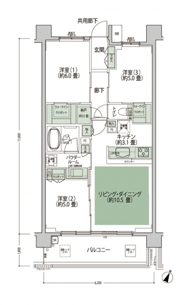
ステーションコート東浦和lo 1140.jpg
提供: すてき空間
目次 >
このプレビューのサイズ: 377 × 599 ピクセル。 その他の解像度: 151 × 240 ピクセル | 490 × 778 ピクセル。
元のファイル (490 × 778 ピクセル、ファイルサイズ: 116キロバイト、MIME タイプ: image/jpeg)
ファイルの履歴
過去の版のファイルを表示するには、その版の日時をクリックしてください。
| 日付と時刻 | サムネイル | 寸法 | 利用者 | コメント | |
|---|---|---|---|---|---|
| 現在の版 | 2014年4月7日 (月) 17:47 | 490 × 778 (116キロバイト) | Renren0126 (トーク | 投稿記録) |
- このファイルは上書きできません。
ファイルの使用状況
以下のページがこのファイルにリンクしています:
