[PR] スポンサードリンク
プレイズ春日部
提供: すてき空間
目次 >
(→間取り) |
|||
| 21行目: | 21行目: | ||
==交通== | ==交通== | ||
| − | + | 【電車】 | |
| + | *「春日部」駅徒歩8分という距離は距離的に、程よい距離に位置していると思います。 | ||
| + | *徒歩8分は厳しいですね。 徒歩10分強は見ておいた方が無難ですが、伊勢崎線で北千住方面なら改札直ぐにホームなので、比較的楽です。(高架になるまでは) 道中、大したお店はありません。 東口は寂れた商店街で、特に都内勤めの方は朝夕ともに閑散とした道のりになるので、想像以上に遠く感じると思います。 感覚的なことになるので実際に歩いてみることをお勧めします。 | ||
| + | *駅まで徒歩8分、 毎日通勤で歩いていたら慣れる距離のように思います。 この静けさというのか、ザワザワした感じを避けたい人は良いのでないかしら。 季節をちゃんと感じられる地に住んでいけるっていいなと思いました。 | ||
| + | *たしかに徒歩8分の距離なら苦痛に感じる距離ではないと思いますから、普通に歩けると思います。 静けさを希望するならこのくらいの距離がちょうどいいのかなと個人的にも思いますよ | ||
| + | *アーバンパークライン使って大宮まで出れば、スカイツリーラインが苦手とする 池袋・新宿・渋谷方面にも行きやすいってメリットはあるんだろうけどね | ||
| 28行目: | 33行目: | ||
**角の白抜きなら駄菓子屋、床屋、民家、倉庫ですね。確か駄菓子屋、床屋は家族か親戚のはず。狭いのでそこにマンションは建たないと思うけど。どちらかというと、北側にあるマンションが気の毒ですね。 | **角の白抜きなら駄菓子屋、床屋、民家、倉庫ですね。確か駄菓子屋、床屋は家族か親戚のはず。狭いのでそこにマンションは建たないと思うけど。どちらかというと、北側にあるマンションが気の毒ですね。 | ||
*今はまだ詳しいことが明確には出ていないのですが、スタイリッシュな外観デザインだけはHPにのっていて良いなと感じました。団地っぽい感じのマンションを見ることが多いので、こんな洗練された感じのデザインに住みたいと憧れる人は多いかも。 | *今はまだ詳しいことが明確には出ていないのですが、スタイリッシュな外観デザインだけはHPにのっていて良いなと感じました。団地っぽい感じのマンションを見ることが多いので、こんな洗練された感じのデザインに住みたいと憧れる人は多いかも。 | ||
| + | *計算するとワンフロアに5戸くらいでしょうか。 外観デザインもスタイリッシュでイマドキな感じがいいなと思います。 | ||
| + | *プラン内容は、間取りも設備内容も良い感じですが、 エントランスもホテルのようで高級感のある仕上りなりそうで良いなぁと思いました。 最終的には建ってからしかわからないことではあるのですが 外観デザインもおしゃれな感じにしあがるのかなと予想できます。 南向きというのも魅力を感じました。 | ||
| + | *外観も綺麗で室内も良い感じではないでしょうか。 | ||
| + | 【眺望・日照】 | ||
| + | *南向きとはいえ、目の前に中階層のマンションがあるため、低階層だと日が当たらない部屋が出てくるかもしれませんね | ||
| + | *日当たりに関してはやはり確認したほうが良いのかもしれないなと思います。 恐らく、モデルルームには日照のシミュレーションが用意されていると思いますので、 一応聞いてみたほうが良いんじゃないかなと思いました。 やっぱり、日中は家にいないから日当たり関係ないと思っても 例えばリセールしなければならなくなった時にはそれが強く関係してくるので 確認しておいたほうがいいのかなって感じました。 | ||
| + | *15階建てなんですね。 グーグルマップを見ると南側に8階建てのマンションが建っているので 1~8階は日当たりは微妙そうですね。 | ||
==共用施設== | ==共用施設== | ||
| − | + | *駐車場は平置式26台(小型車用4台含む)という台数からすると、ファミリー世帯が中心の場合、抽選になる可能性は高くなってくるのかな。平置きというところはとてもいいと思いますが台数が少ないので車を所持している方にとってはマイナス。周辺に月極め駐車場を探す必要がありますね。 | |
| + | *最寄り駅まで徒歩圏内ですが、マイカーはあったほうが良いと思うので 駐車場は全戸分あればもっと良かったかもしれません。 | ||
| + | *最近は無人管理のマンションもありますが、ここは有人管理なのが安心でいいです。 午前8時から午前3時まで管理員が常駐してくれるのは、犯罪防止になりますよね。 こちらはかなりマンションのセキュリティ面に力を入れている点が目につきました。 マンションは時間によっては無人化するほど人がいないので、セキュリティ面は重要。 | ||
==設備・仕様== | ==設備・仕様== | ||
| − | + | *完成予想CG見ると 角住居のバルコニーは半分しかないんですね。なんでなんだろ? | |
| + | *水がキレイな状態で使えるのはいいのですが、維持費は将来的にどうなのでしょう。 カーボンフィルター交換の他にメンテナンス費用がかかりますよね。 そのまま飲めるレベルならば、ペットボトルの水代が浮くのでお得ですが。 ずっと最初の水質レベルで使えるならいいですね。 | ||
| + | **浄水器のフィルター交換費用は管理費に含まれていると記載がありましたよ 1戸当たり、年間14000円の負担ですからそれほど大きな負担では無さそう。 ペットボトル購入やウォーターサーバーの料金よりも大幅にお得になるんじゃないでしょうか。 フィルター交換は年間1回が基本になってくるのかな?1回交換すればきれいな水を保てるなら、 かなりお得感はありますし、安心して利用できるのは良いと思います。 | ||
| + | **年間14,000円はちょっと高いなあ。 オプションにすれば良いのに。 | ||
| + | *良水工房があることにより、安心して水を使用することができそう。 浄水器がついているので、ウォーターサーバーいらずなのはうれしいですし、 お風呂の水まできれいに保っているので、子供がいる家族にとってはとても安心です。 浴室のデザインは木目調となっていて、おしゃれにみえます。こういう細かいところまでのデザインはとても素敵ですね。 | ||
| + | **良水工房良いですね。 フィルター交換は1住戸あたり毎年14,000円(税別)の負担ですけど 管理費に含まれているからそれほど負担に感じないですね。 | ||
| 43行目: | 62行目: | ||
*間取:2LDK~4LDK | *間取:2LDK~4LDK | ||
**専有面積:61.74㎡~81.39㎡ | **専有面積:61.74㎡~81.39㎡ | ||
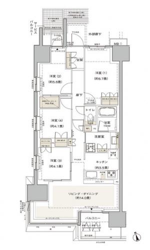
| + | *A typeは、柱が3本混入、バルコニーが狭い、LDKの扉の位置が玄関寄り過ぎ(洗面室/浴室はLDKから)。 B1 typeは、柱が2本混入、アルコーブが無い。 | ||
| + | *バルコニーは角住戸でないなら広いほうがいいですね。 バルコニーからしか採光が望めないから。 最近はアウトフレームが主流になりつつあるみたいですが、室内に箪笥などを置かないならそこまでは気にならない。 トイレと浴室は隣り合わせのほうが生活動線としはいいですけど。 | ||
| + | *AタイプとDタイプは、リビングダイニングの形が珍しい感じです。「呂」っていう感じに似ているような並びというか。 少しダイニングにする部分とリビングにする部分がズレて設置されているということなんだなと思いました。 | ||
| + | 動線が取りやすいかもしれません。 | ||
| + | *角部屋の半分がガラスウォールにっているのですね。 埼玉では珍しいのではないでしょうか | ||
| + | **洗面室がリビングインですか。お風呂の出入りがリビング経由だと年頃の女の子は嫌がりそう。 | ||
| + | *ガラスウォール、部屋に広がりを感じると思いますが実質リビングの奥は廊下部分になってるので残念ですね。この独特の間取りは、デザイン性優先の外観のせいなんでしょうか。 マンションは見た目も大事ですけどね。 脱衣所がリビングインしてますが、位置が奥まってるので意外と気にならないかもしれません。 | ||
| + | *収納スペースが結構あるみたいですので、家族向きな物件ですね。 子育ての環境には向いていると思います。 気になる方も多そうですね。 | ||
| + | *間取りを見ているとかなり収納系はこだわっているのが伝わってきます。 かなり収納が空間を占める割合が高め。 収納がしっかりしていると、チェストなどは最小限で済ませられるので、部屋の中自体の空間効率もぐっとよくなっていきます。 これ、結構大切です。 | ||
| + | [[File:プレイズ春日部角部屋間取り図.jpg|300px|thumb|プレイズ春日部角部屋間取り図]]|角部屋間取り図 | ||
==買い物・食事== | ==買い物・食事== | ||
| − | + | *駅からの帰り道の商店街は本当に閑散としていて、特に夜は少し怖かったです。夏のお祭りの時しか賑わいません。早く駅の高架化で活性化してほしい。 | |
| + | *この周辺だと食料の買い出しはどこまで行くのかな? 電車通勤の人はフジガーデンを使うのかな? | ||
| + | *いよいよヨーカドーの2Fが20時閉店になったから、西口もきつくなってきた。 ヨーカドーが閉まったら八木崎と北春日部は買い物、車がないとつらい | ||
| + | **ヨーカドーて地下は今まで通りだろ? この物件買う人達ってヨーカドー使うの?どこまで買いに行くか知らないが、春日部は車あった方がいいよ。 | ||
| 57行目: | 89行目: | ||
*元春日部西武の「匠大塚」の隣ですね。この土地にあったパチンコ屋が環境面のネックでしたが、マンションに変われば住環境は良好だと思います。 ただし商業地域なので将来的な日当たりが保証されないのがネックかな。 | *元春日部西武の「匠大塚」の隣ですね。この土地にあったパチンコ屋が環境面のネックでしたが、マンションに変われば住環境は良好だと思います。 ただし商業地域なので将来的な日当たりが保証されないのがネックかな。 | ||
**元パチンコ屋からマンションならご近所さんも喜んでそうです。 | **元パチンコ屋からマンションならご近所さんも喜んでそうです。 | ||
| + | *駅も近いですし、住みやすい物件だと思います。 わりと落ちついている環境で、賑やかな感じがありませんので、 高齢者でも安心して生活出来そうですよね。 | ||
| + | *このあたりの物件については、非常に注目しています。 本当に将来的にどうなるか、ということは気になっています。 春日部もずいぶんと開けてきましたから嬉しいです。 駅前も賑やかなので、個人的にも何度も寄らせていただいています! | ||
| + | *最近、春日部に越してきた者です。 普通に生活するには春日部は問題ないと思います。 | ||
| + | 綺麗ですし。 物件価格も安いし嬉しいです。 | ||
| + | 【再開発】 | ||
| + | *春日部駅はやっと東武線の高架が動き始め、西口の再開発も5年後めどに動き始めたようです。スムーズに行けば良いですが。聞くところによるとビジネス?ホテル2棟の計画もあるとか。ポイントは東武鉄道が重い腰をあげたことでしょうか。少々期待しますね。 | ||
| + | |||
| + | 【治安】 | ||
| + | *久しぶりに春日部東にいったら、さらに衰退してんな。 匠大塚~マック周辺の治安が悪かったけどさらに悪化してるやん。 夜の帰り道とかやべえわ。 | ||
==周辺施設== | ==周辺施設== | ||
| + | 【公園・自然】 | ||
| + | *隣にある大落古利根川って、昔の利根川ということ? | ||
| + | *リバーサイドと書いてありますが、川からはちょっと奥に入ったところに位置しているようですね。 川沿いが近いので犬のお散歩に行くのに安全で歩きやすい道があるのが良いと思います 春は桜並木になっていて、きれいなんでしょうね。この辺りはお花見スポットになっているのかな | ||
| + | *春の川沿いの桜は綺麗ですよ。小さい子どもが居る方は、エンゼルドームや支援センターまで、歩いて行ける距離ですし、西口徒歩10分圏に比べたら静かで住みやすいと思います。ただ、川沿いのせいか、特に冬は強風で玄関のドアの開閉が大変だったです。 | ||
| + | |||
| + | 【公共施設】 | ||
| + | *子育て世帯には支援センターやエンゼルドームが近いのはいいね。 | ||
| 73行目: | 121行目: | ||
*[ ] | *[ ] | ||
| − | saitama/626177/7 | + | saitama/626177/7-86 |
2019年2月5日 (火) 15:48時点における版
目次
物件概要
- 総戸数:84戸
- 構造、建物階数:地上15階建
- 敷地の権利形態:所有権の共有
- 完成時期:2019年02月下旬予定
- 売主:三交不動産株式会社 マンション事業本部 東京支店
- 施工:株式会社長谷工コーポレーション
- 管理会社:株式会社長谷工コミュニティ
価格・コスト・販売時状況
- 価格帯はどの位になりそうですか?
- これは、売れる。
- 埼玉で、一番衰退している春日部 徒歩10分 しかも東口 需要ありますかね?せめて、西武が残ってれば・・・
- 越谷駅徒歩4分のセンチュリー越谷ブライトアリーナが坪168万円~だから、これよりは安くないとね。でも3LDK 70平米 坪170万円、最上階だとして3600万円か。近隣の中古マンションの相場が築10年強で坪100万円切っているぐらいだからこれでも高いような。
交通
【電車】
- 「春日部」駅徒歩8分という距離は距離的に、程よい距離に位置していると思います。
- 徒歩8分は厳しいですね。 徒歩10分強は見ておいた方が無難ですが、伊勢崎線で北千住方面なら改札直ぐにホームなので、比較的楽です。(高架になるまでは) 道中、大したお店はありません。 東口は寂れた商店街で、特に都内勤めの方は朝夕ともに閑散とした道のりになるので、想像以上に遠く感じると思います。 感覚的なことになるので実際に歩いてみることをお勧めします。
- 駅まで徒歩8分、 毎日通勤で歩いていたら慣れる距離のように思います。 この静けさというのか、ザワザワした感じを避けたい人は良いのでないかしら。 季節をちゃんと感じられる地に住んでいけるっていいなと思いました。
- たしかに徒歩8分の距離なら苦痛に感じる距離ではないと思いますから、普通に歩けると思います。 静けさを希望するならこのくらいの距離がちょうどいいのかなと個人的にも思いますよ
- アーバンパークライン使って大宮まで出れば、スカイツリーラインが苦手とする 池袋・新宿・渋谷方面にも行きやすいってメリットはあるんだろうけどね
構造・建物
- マンションの敷地が変形してますけど、白抜きの部分は何があるのでしょうか。日当りもその建物(?)のことで色々変わるってことなのですかね。日当りの良い部屋というのが条件の場合は、より高い階を選択した方が良いかもしれませんね。
- 角の白抜きなら駄菓子屋、床屋、民家、倉庫ですね。確か駄菓子屋、床屋は家族か親戚のはず。狭いのでそこにマンションは建たないと思うけど。どちらかというと、北側にあるマンションが気の毒ですね。
- 今はまだ詳しいことが明確には出ていないのですが、スタイリッシュな外観デザインだけはHPにのっていて良いなと感じました。団地っぽい感じのマンションを見ることが多いので、こんな洗練された感じのデザインに住みたいと憧れる人は多いかも。
- 計算するとワンフロアに5戸くらいでしょうか。 外観デザインもスタイリッシュでイマドキな感じがいいなと思います。
- プラン内容は、間取りも設備内容も良い感じですが、 エントランスもホテルのようで高級感のある仕上りなりそうで良いなぁと思いました。 最終的には建ってからしかわからないことではあるのですが 外観デザインもおしゃれな感じにしあがるのかなと予想できます。 南向きというのも魅力を感じました。
- 外観も綺麗で室内も良い感じではないでしょうか。
【眺望・日照】
- 南向きとはいえ、目の前に中階層のマンションがあるため、低階層だと日が当たらない部屋が出てくるかもしれませんね
- 日当たりに関してはやはり確認したほうが良いのかもしれないなと思います。 恐らく、モデルルームには日照のシミュレーションが用意されていると思いますので、 一応聞いてみたほうが良いんじゃないかなと思いました。 やっぱり、日中は家にいないから日当たり関係ないと思っても 例えばリセールしなければならなくなった時にはそれが強く関係してくるので 確認しておいたほうがいいのかなって感じました。
- 15階建てなんですね。 グーグルマップを見ると南側に8階建てのマンションが建っているので 1~8階は日当たりは微妙そうですね。
[PR] スポンサードリンク
共用施設
- 駐車場は平置式26台(小型車用4台含む)という台数からすると、ファミリー世帯が中心の場合、抽選になる可能性は高くなってくるのかな。平置きというところはとてもいいと思いますが台数が少ないので車を所持している方にとってはマイナス。周辺に月極め駐車場を探す必要がありますね。
- 最寄り駅まで徒歩圏内ですが、マイカーはあったほうが良いと思うので 駐車場は全戸分あればもっと良かったかもしれません。
- 最近は無人管理のマンションもありますが、ここは有人管理なのが安心でいいです。 午前8時から午前3時まで管理員が常駐してくれるのは、犯罪防止になりますよね。 こちらはかなりマンションのセキュリティ面に力を入れている点が目につきました。 マンションは時間によっては無人化するほど人がいないので、セキュリティ面は重要。
設備・仕様
- 完成予想CG見ると 角住居のバルコニーは半分しかないんですね。なんでなんだろ?
- 水がキレイな状態で使えるのはいいのですが、維持費は将来的にどうなのでしょう。 カーボンフィルター交換の他にメンテナンス費用がかかりますよね。 そのまま飲めるレベルならば、ペットボトルの水代が浮くのでお得ですが。 ずっと最初の水質レベルで使えるならいいですね。
- 浄水器のフィルター交換費用は管理費に含まれていると記載がありましたよ 1戸当たり、年間14000円の負担ですからそれほど大きな負担では無さそう。 ペットボトル購入やウォーターサーバーの料金よりも大幅にお得になるんじゃないでしょうか。 フィルター交換は年間1回が基本になってくるのかな?1回交換すればきれいな水を保てるなら、 かなりお得感はありますし、安心して利用できるのは良いと思います。
- 年間14,000円はちょっと高いなあ。 オプションにすれば良いのに。
- 良水工房があることにより、安心して水を使用することができそう。 浄水器がついているので、ウォーターサーバーいらずなのはうれしいですし、 お風呂の水まできれいに保っているので、子供がいる家族にとってはとても安心です。 浴室のデザインは木目調となっていて、おしゃれにみえます。こういう細かいところまでのデザインはとても素敵ですね。
- 良水工房良いですね。 フィルター交換は1住戸あたり毎年14,000円(税別)の負担ですけど 管理費に含まれているからそれほど負担に感じないですね。
[PR] スポンサードリンク
間取り
- 間取:2LDK~4LDK
- 専有面積:61.74㎡~81.39㎡
- A typeは、柱が3本混入、バルコニーが狭い、LDKの扉の位置が玄関寄り過ぎ(洗面室/浴室はLDKから)。 B1 typeは、柱が2本混入、アルコーブが無い。
- バルコニーは角住戸でないなら広いほうがいいですね。 バルコニーからしか採光が望めないから。 最近はアウトフレームが主流になりつつあるみたいですが、室内に箪笥などを置かないならそこまでは気にならない。 トイレと浴室は隣り合わせのほうが生活動線としはいいですけど。
- AタイプとDタイプは、リビングダイニングの形が珍しい感じです。「呂」っていう感じに似ているような並びというか。 少しダイニングにする部分とリビングにする部分がズレて設置されているということなんだなと思いました。
動線が取りやすいかもしれません。
- 角部屋の半分がガラスウォールにっているのですね。 埼玉では珍しいのではないでしょうか
- 洗面室がリビングインですか。お風呂の出入りがリビング経由だと年頃の女の子は嫌がりそう。
- ガラスウォール、部屋に広がりを感じると思いますが実質リビングの奥は廊下部分になってるので残念ですね。この独特の間取りは、デザイン性優先の外観のせいなんでしょうか。 マンションは見た目も大事ですけどね。 脱衣所がリビングインしてますが、位置が奥まってるので意外と気にならないかもしれません。
- 収納スペースが結構あるみたいですので、家族向きな物件ですね。 子育ての環境には向いていると思います。 気になる方も多そうですね。
- 間取りを見ているとかなり収納系はこだわっているのが伝わってきます。 かなり収納が空間を占める割合が高め。 収納がしっかりしていると、チェストなどは最小限で済ませられるので、部屋の中自体の空間効率もぐっとよくなっていきます。 これ、結構大切です。
|角部屋間取り図
[PR] スポンサードリンク
買い物・食事
- 駅からの帰り道の商店街は本当に閑散としていて、特に夜は少し怖かったです。夏のお祭りの時しか賑わいません。早く駅の高架化で活性化してほしい。
- この周辺だと食料の買い出しはどこまで行くのかな? 電車通勤の人はフジガーデンを使うのかな?
- いよいよヨーカドーの2Fが20時閉店になったから、西口もきつくなってきた。 ヨーカドーが閉まったら八木崎と北春日部は買い物、車がないとつらい
- ヨーカドーて地下は今まで通りだろ? この物件買う人達ってヨーカドー使うの?どこまで買いに行くか知らないが、春日部は車あった方がいいよ。
育児・教育
周辺環境・治安
- 元春日部西武の「匠大塚」の隣ですね。この土地にあったパチンコ屋が環境面のネックでしたが、マンションに変われば住環境は良好だと思います。 ただし商業地域なので将来的な日当たりが保証されないのがネックかな。
- 元パチンコ屋からマンションならご近所さんも喜んでそうです。
- 駅も近いですし、住みやすい物件だと思います。 わりと落ちついている環境で、賑やかな感じがありませんので、 高齢者でも安心して生活出来そうですよね。
- このあたりの物件については、非常に注目しています。 本当に将来的にどうなるか、ということは気になっています。 春日部もずいぶんと開けてきましたから嬉しいです。 駅前も賑やかなので、個人的にも何度も寄らせていただいています!
- 最近、春日部に越してきた者です。 普通に生活するには春日部は問題ないと思います。
綺麗ですし。 物件価格も安いし嬉しいです。
【再開発】
- 春日部駅はやっと東武線の高架が動き始め、西口の再開発も5年後めどに動き始めたようです。スムーズに行けば良いですが。聞くところによるとビジネス?ホテル2棟の計画もあるとか。ポイントは東武鉄道が重い腰をあげたことでしょうか。少々期待しますね。
【治安】
- 久しぶりに春日部東にいったら、さらに衰退してんな。 匠大塚~マック周辺の治安が悪かったけどさらに悪化してるやん。 夜の帰り道とかやべえわ。
[PR] スポンサードリンク
周辺施設
【公園・自然】
- 隣にある大落古利根川って、昔の利根川ということ?
- リバーサイドと書いてありますが、川からはちょっと奥に入ったところに位置しているようですね。 川沿いが近いので犬のお散歩に行くのに安全で歩きやすい道があるのが良いと思います 春は桜並木になっていて、きれいなんでしょうね。この辺りはお花見スポットになっているのかな
- 春の川沿いの桜は綺麗ですよ。小さい子どもが居る方は、エンゼルドームや支援センターまで、歩いて行ける距離ですし、西口徒歩10分圏に比べたら静かで住みやすいと思います。ただ、川沿いのせいか、特に冬は強風で玄関のドアの開閉が大変だったです。
【公共施設】
- 子育て世帯には支援センターやエンゼルドームが近いのはいいね。
その他
掲示板
- [ ]
saitama/626177/7-86
| 物件概要 | |
|---|---|
| 所在地 | 埼玉県春日部市粕壁東2-15-1他(地番) |
| 交通 |
東武伊勢崎線 「春日部」駅 徒歩8分 東武野田線 「春日部」駅 徒歩8分 |
| 総戸数 | 84戸 |
